首页 > 装修攻略 > 装修前 > 验房 > 装修前 > 150平量房图分享:如何精准测量空间,提高装修效率

150平量房图分享:如何精准测量空间,提高装修效率

百安居

分享150平量房图的重要性与操作步骤,解决用户常见问题,并提供实用的装修设计对接方法,同时探索未来家居装修趋势,为您的家装提供专业指导。
150平量房图分享:如何精准测量空间,提高装修效率

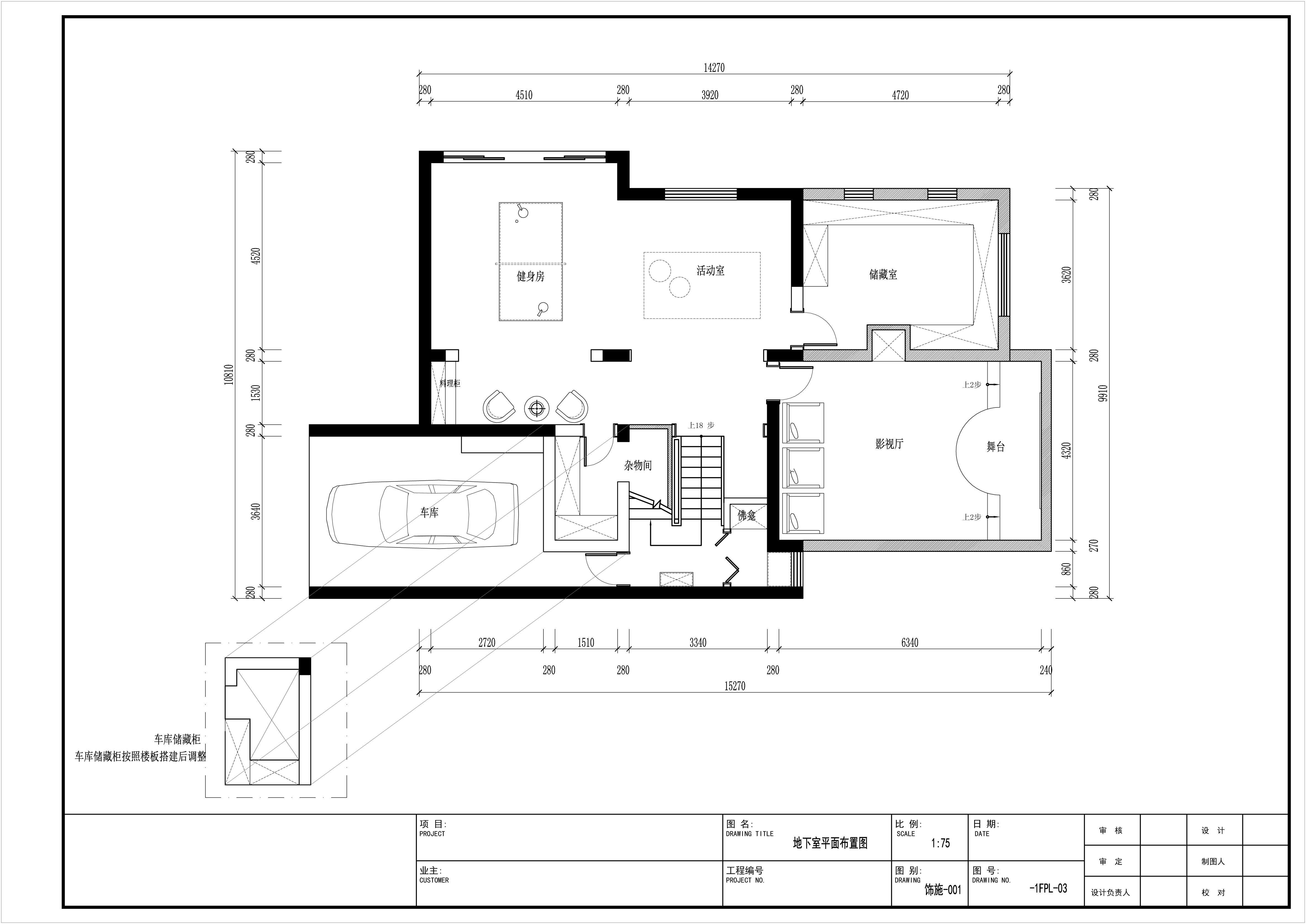
精确量房的重要性与步骤解析

在装修前进行150平米房屋的量房图设计,是确保后续施工顺利进行的重要一步。量房不仅能帮助设计师了解实际空间格局,还能避免材料浪费或设计偏差。标准的量房通常包括测量墙体尺寸、门窗位置、层高、柱梁结构以及预留水电位置等。使用专业测量工具如激光测距仪能够大幅提升精度,同时建议图纸标注清晰,确保设计沟通无误。

量房过程中用户常见问题解答

150平量房图分享:如何精准测量空间,提高装修效率150平量房图分享:如何精准测量空间,提高装修效率

许多业主在量房过程中都会遇到一些困惑,比如“如何确保量房数据准确?”建议在量房前清理空间以减少阻碍,使用专业工具并进行重复测量以确保数据准确。此外,“哪些位置需要重点测量?”如厨房、卫生间等功能性区域,是设计环节中的关键领域,需要准确标记水电管线及设备摆放位置。

如何轻松实现量房与设计对接

精准生成150平量房图之后,便可将数据交由设计师进行方案绘制。首先,利用设计软件将量房数据输入,生成平面布置图;其次,审查方案是否符合个人需求;最后,与施工团队协调施工图,共同确保每步无差错。如果您选择百安居,更可享受专业设计师一对一量房服务,让您的装修体验更加省心。

关注未来家装趋势,让你的家更具价值

随着智能家居和环保材料的逐渐普及,现代家庭越来越注重空间利用率与舒适感。150平米大户型家庭可以选择智能收纳设计、环保涂料等方案,让您的家居兼具美观性与功能性。百安居始终走在家装行业前沿,为每位客户提供创新解决方案。

无论您是正在计划装修,还是已经着手准备,我们都欢迎您点击咨询百安居的在线客服,或访问我们官网预约专业量房服务。专业、高效、贴心,是我们为您打造理想家居的承诺。

找装修 选材料  百安居正品保障  家装 · 建材 一站式解决方案
请选择城市
免费预约